CoVault Glasgow – Cambuslang
Fullarton Road, Cambuslang, Glasgow, G32 8YL
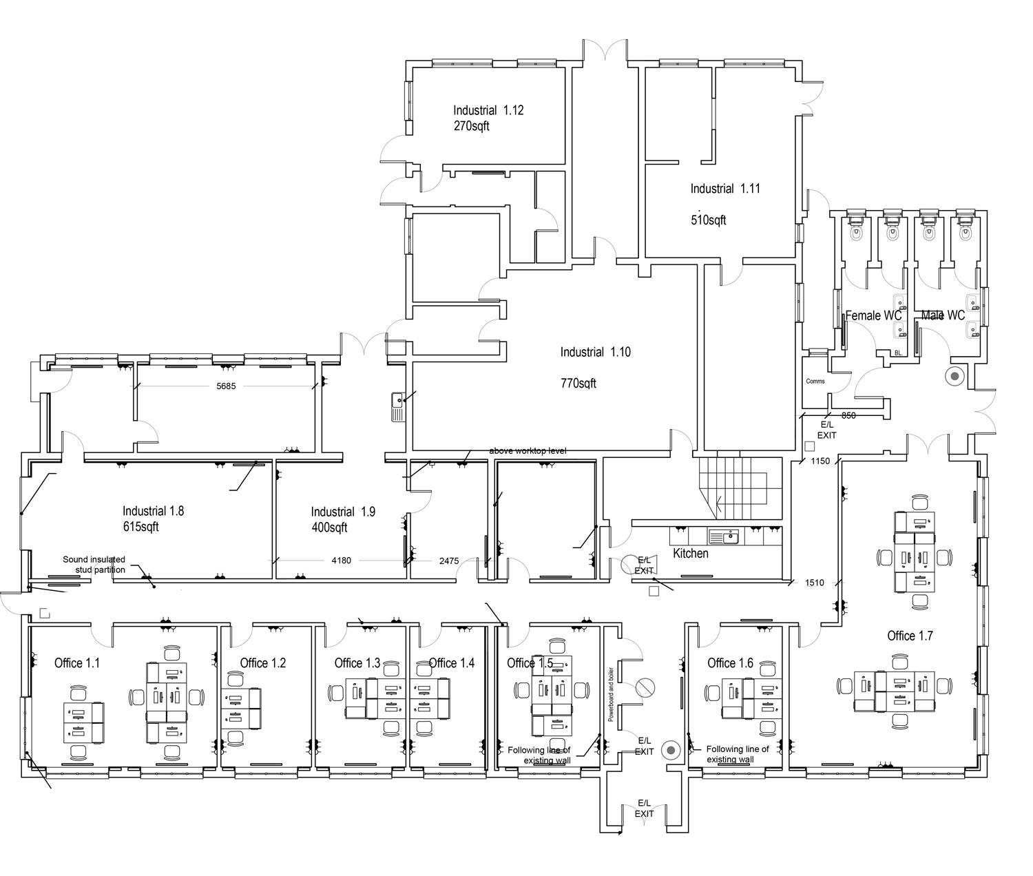
Smart and modern, this well designed and contemporary workspace provides a brilliant home for many business needs. The offices are light and spacious with comfortable furniture and desks. Industrial units are easily accessible through roller shutter which makes loading and unloading very easy.
The building provides your company with a professional image. Members at this location will also benefit from a high quality modern kitchen with glossy monochrome fittings and a selection of appliances.
Members will also have access to kitchen and conferencing facilities as well as the added luxury of being directly connected to a bespoke constructed self-storage operator offering the best value storage in the area. The workspaces are fully secure, requiring fob access to advance beyond main gate, while 24/7 CCTV monitors the property at all times.
Workspaces & Pricing
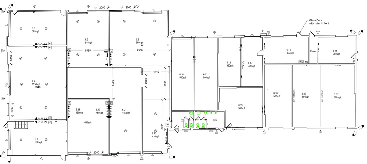
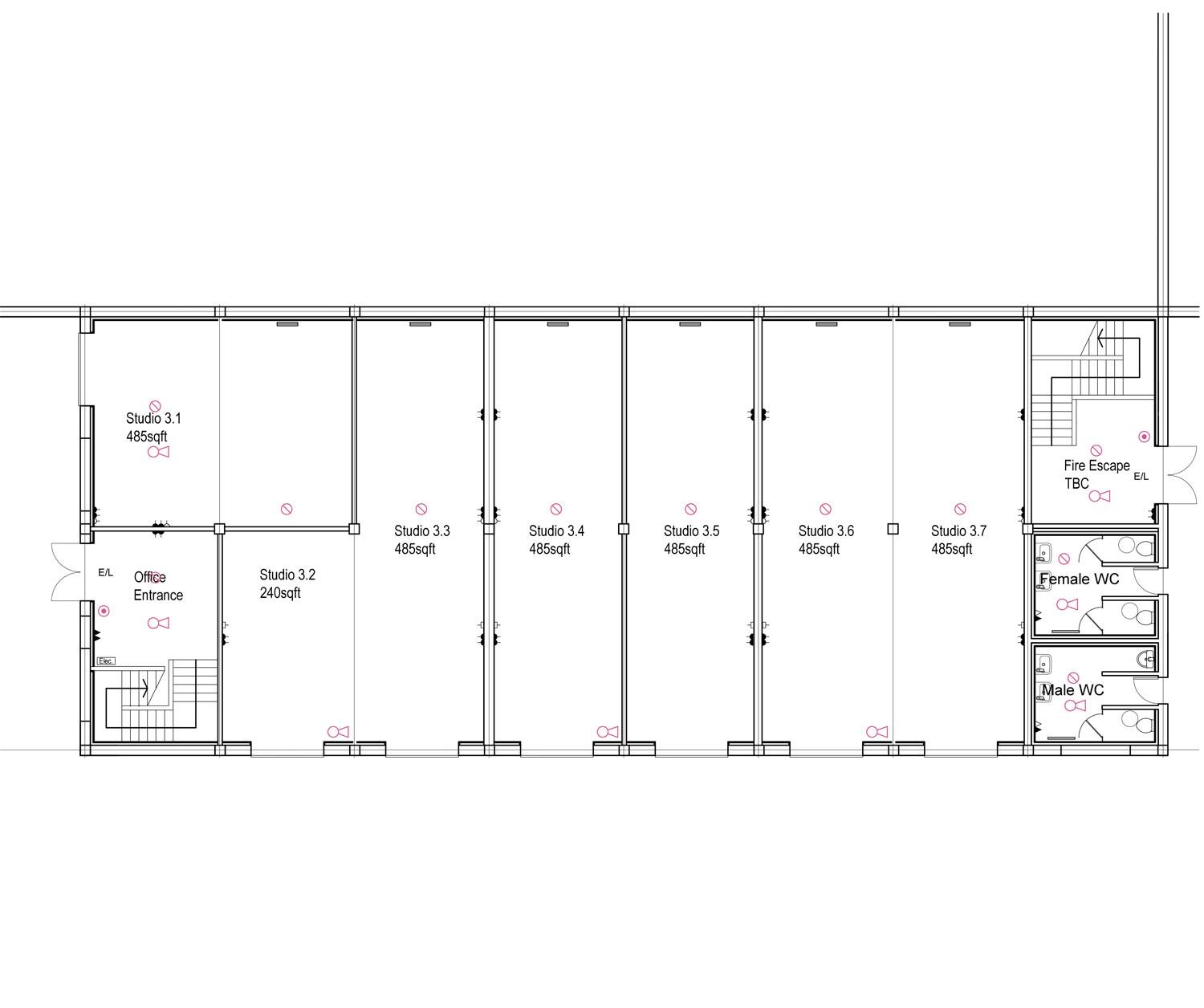
Light Industrial
High quality, modern studios with roller doors for easy access.
From £180p/m
Office Space
Our offices come fully furnished and ready to go. Get a state-of-the-art office suite on a flexible contract.
From £148p/m
Flexible Payment Plans
Business needs can change rapidly. Our monthly rolling contracts give you the ultimate flexibility to grow your space as your needs change.
Location
Fullarton Road, Cambuslang, Glasgow, G32 8YL
Positioned only 15 minutes outside of Glasgow City Centre and next to junction 2A of the M74, this office is ideally located for those commuting via the motorway.
Site Plan
Amenities
Pay one simple price - your electricity, heating, maintenance and cleaning of communal areas are included.
24 hour access
CCTV
Central Heating
Communal cleaning
Furnished Offices
IT Support
Kitchen
Meeting Rooms
Parking
Postal Facilities
Security systems
Shared internet
Staff on site 7 days a week
Gallery
If you would like to see the real thing, contact us to book a viewing
What our members say
"It was love at first sight when we were first shown the brand-new space at CoVault Cambuslang"
Dawn-Marie Feeny, Dollybird Stationary

