CoVault Paisley – 53 Clark Street

53 Clark Street, Paisley PA3 1QS

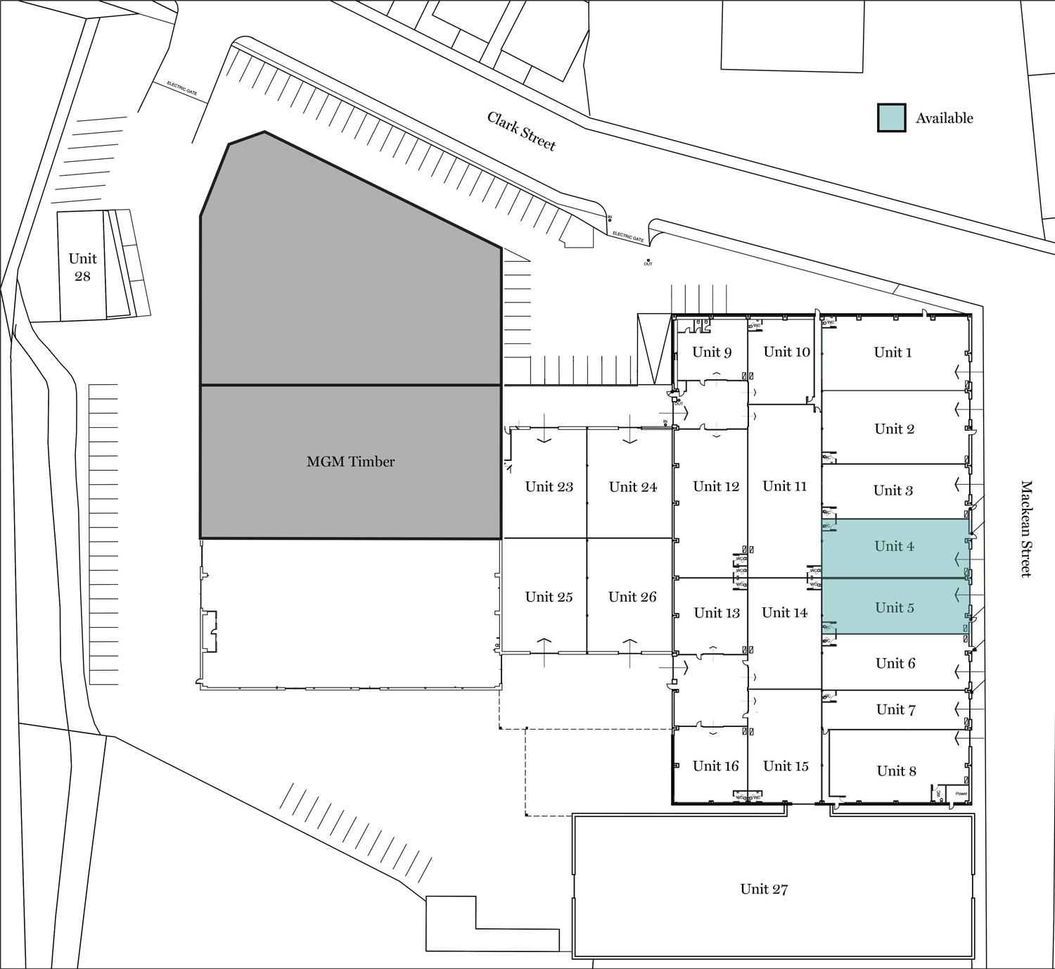
Prominent warehouse capable of subdivision with ample secure yard space. Access to the unit is through roller shutter doors that can accommodate HGVs.

This large warehouse has recently been split and is positioned prominently within a secure industrial yard gaining access directly from McKean street. This building includes two communal loading bays in the rear as well as one loading area in the front. The yard itself is CCTV monitored and secured via cantilever access gate.

Ample parking exists as well as enough space to employ circa 4000 pallet spaces using racking.

 

 

Workspaces & Pricing

Light Industrial

High quality, modern studios with roller doors for easy access.

From £788p/m

Flexible Payment Plans

Business needs can change rapidly. Our monthly rolling contracts give you the ultimate flexibility to grow your space as your needs change.

Location

53 Clark Street, Paisley PA3 1QS

Located on Clark Street in Paisley, this property is easily accessible from Paisley St James railway station and located in an industrial estate. Located within minutes of Glasgow Airport and J29 of the M8.

Site Plan

Gallery

If you would like to see the real thing, contact us to book a viewing

What our members say

"After dealing with air freight for the last 14 years, the move to CoVault Paisley, just a stone’s throw from Glasgow Airport really helped our company grow"

Mairi Anderson, Mika Logistics

Enquire Now

We offer space to suit every business. Get in touch and we’ll find the right space for you.

    By clicking the above button you agree to our Terms of Service and have read and understood our Privacy Policy

    Or call us on:

    0141 889 1000